賃貸物件詳細

この物件は現在非公開になっております
物件番号 100333727
中心部 店舗
396,000
(株)さとう不動産
敷金
216.0万円
築後
55年
間取・詳細
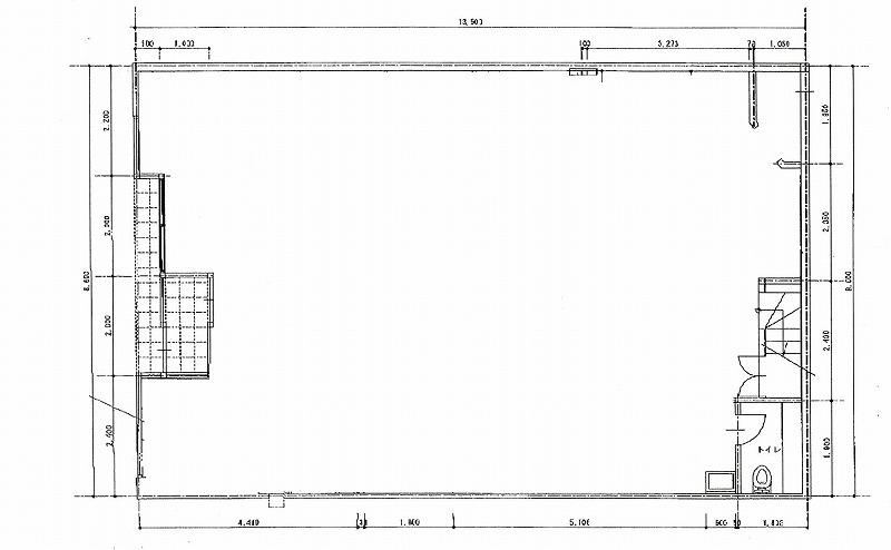
1F / 36坪
この物件のお問い合わせ
0166-73-4905
メールでの問い合わせ
種別 / 番号
店舗 / 100333727
家賃/敷/礼
396,000円/ 2,160,000円 / 0円
媒介報酬
396,000円
物件住所
旭川市3条通8丁目72-1
間取・詳細
1F / 36坪
建築年
昭和45年9 月(1970年) 55年
木造亜鉛メッキ鋼板葺
階建/階
3 / 1
駐車/料金
月極駐車場
管理費
0円
学校
取引態様
媒介
ペット可否
不可
定期借家
交通機関
バス停から徒歩1分
最終更新日
2025-12-16 (次回更新2週間後)
引渡可能日
即入居可能
※現状貸しとなります。
設備は前入居者様の残置物の為、設備除外品(無償貸出)となります。
→空調設備・自動ドア・水洗トイレ・シンク
※建物築年数はおおまかなものです。

備考
買物公園通り沿いのテナントです(^^♪
以前は野菜専門の販売店が営業していました。飲食店可(職種等はご相談ください)
2fに事務所で使用できそうなスペースも付いています
位置確認
旭川地図情報
画面表示時間 2025年12月22日 17時10分17秒

この物件のお問い合わせ先:

(株)さとう不動産
TEL:0166-73-4905 FAX:0166-56-3513
070-0033 旭川市3条通8丁目1293番地1
http://www.hokkaido-satou.co.jp
北海道知事免許・上川 (2) 第1260号
公益社団法人北海道宅地建物取引業協会会員
一般社団法人北海道不動産公正取引協議会加盟

※お電話でのお問い合わせ

お問い合わせの際には、IRI(アイ・アール・アイ)を見てとお伝えください。
また、掲載の物件住所と金額、物件番号などをお伝えいただくとスムーズです。

※ご注意

上記表示価格は、消費税込み価格です。消費税については、取扱店にお問い合わせ下さい。
PAGE TOP