賃貸物件詳細

物件番号 100364694
中心部 アパート
50,000
(株)銀座センタービル
敷金
1ヶ月
築後
36年
間取・詳細
1R / 11.4LDK
この物件のお問い合わせ
0166-24-2155
メールでの問い合わせ
種別 / 番号
アパート / 100364694
家賃/敷/礼
50,000円/ 50,000円 / 0円
媒介報酬
0円
物件住所
旭川市3条通14丁目
間取・詳細
1R / 11.4LDK
建築年
平成02年3月(1990年) 36年
鉄骨造 陸屋根
階建/階
3 / 3
駐車/料金
月極駐車場
管理費
0円
学校
取引態様
貸主
ペット可否
不可
定期借家
交通機関
4条14丁目 バス徒歩2分
最終更新日
2026-05-12 (次回更新2週間後)
引渡可能日
20260515
浴室 シャワー 照明器具 暖房器具 都市ガス 給湯器 シャンプードレッサー エアコン ウォシュレット
設備すべて一新、都市ガスFFストーブ、エアコン
※階段使用のこと

備考
[アパート名 314ビル]内階段上って3階です。黄色部分です。建物は銀座商店街の真ん中にあります!新鮮な野菜やくだもの、飲食店、三番館そば!バス停充実しています。
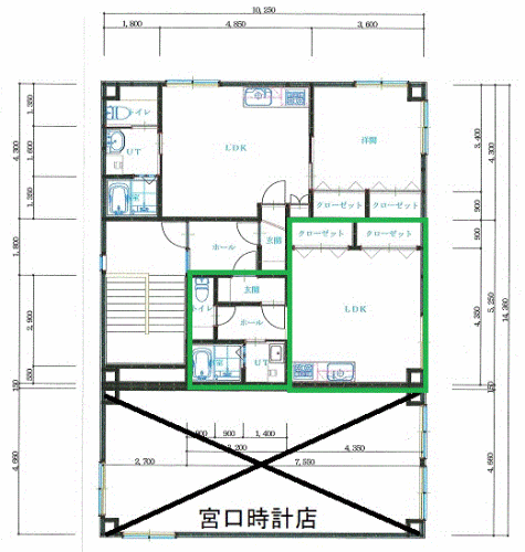
内装設備間取り全面改装済です。②の緑の枠のワンルームです。明るい東向きです。ワンルームですが収納たっぷりあります。
美装済です、いつでも内覧できます。貸主につき媒介料かかりません!
位置確認
旭川地図情報
画面表示時間 2026年5月18日 15時53分39秒

この物件のお問い合わせ先:

(株)銀座センタービル
TEL:0166-24-2155 FAX:0166-24-2156
070-0033 旭川市3条通15丁目左1号
北海道知事免許・上川 (8) 第883号
公益社団法人北海道宅地建物取引業協会会員
一般社団法人北海道不動産公正取引協議会加盟

※お電話でのお問い合わせ

お問い合わせの際には、IRI(アイ・アール・アイ)を見てとお伝えください。
また、掲載の物件住所と金額、物件番号などをお伝えいただくとスムーズです。

※ご注意

上記表示価格は、消費税込み価格です。消費税については、取扱店にお問い合わせ下さい。
PAGE TOP