ÄÂÂßʪ·ï¾ÜºÙ

¤³¤Îʪ·ï¤Ï¸½ºßÈó¸ø³«¤Ë¤Ê¤Ã¤Æ¤ª¤ê¤Þ¤¹
ʪ·ïÈÖ¹æ 100360487
Ë­²¬ ŹÊÞ·ó½»Âð
180,000±ß
(³ô)m&m
Éß¶â
2¥ö·î
ÃÛ¸å
40ǯ
´Ö¼è¡¦¾ÜºÙ
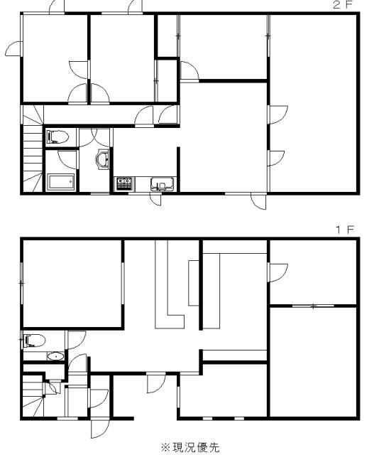
£³LDK / 1³¬:64.80­Ö¡¡2³¬:10LD+4.5K+6+6+6
¤³¤Îʪ·ï¤Î¤ªÌ䤤¹ç¤ï¤»
0166-74-3636
¥á¡¼¥ë¤Ç¤ÎÌ䤤¹ç¤ï¤»
¼ïÊÌ / ÈÖ¹æ
ŹÊÞ·ó½»Âð / 100360487
²ÈÄÂ/Éß/Îé
180,000±ß/ 360,000±ß / 0±ß
ÇÞ²ðÊó½·
198,000±ß
ʪ·ï½»½ê
°°Àî»ÔË­²¬13¾ò8ÃúÌÜ1ÈÖ6¹æ
´Ö¼è¡¦¾ÜºÙ
£³LDK / 1³¬:64.80­Ö¡¡2³¬:10LD+4.5K+6+6+6
·úÃÛǯ
¾¼ÏÂ61ǯ8·î(1986ǯ) 40ǯ
¹½Â¤
ÌÚ¤°¡±ô¥á¥Ã¥­¹ÝÈÄÂû
³¬·ú/³¬
2 / 0
Ãó¼Ö/ÎÁ¶â
5Âæ 0±ß (Ãí: 1ÂæÌܤÎÎÁ¶â¤Ç¤¹)
´ÉÍýÈñ
0±ß
³Ø¹»
°¦ÅæÅì¾®³Ø¹» / °¦ÅæÃæ³Ø¹»
¼è°úÂÖÍÍ
ÇÞ²ð
¥Ú¥Ã¥È²ÄÈÝ
ÉÔ²Ä
Äê´ü¼Ú²È
¸òÄ̵¡´Ø
¥Ð¥¹ÄäÅÌÊâ5ʬ
ºÇ½ª¹¹¿·Æü
2026-05-02 (¼¡²ó¹¹¿·£²½µ´Ö¸å)
°úÅϲÄǽÆü
¨Æþµï²Äǽ
ÀßÈ÷
Íá¼¼ ¥·¥ã¥ï¡¼ ¿åÀö¥È¥¤¥ì ¾ÈÌÀ´ï¶ñ ÃÈ˼´ï¶ñ ʪÃÖ ÌÖ¸Í ÀöÌÌÂæ ÅÔ»Ô¥¬¥¹ µëÅò´ï ¥·¥ã¥ó¥×¡¼¥É¥ì¥Ã¥µ¡¼ ¥¨¥¢¥³¥ó ¥¦¥©¥·¥å¥ì¥Ã¥È ¥Ð¥ë¥³¥Ë¡¼
¾åµ­ÀßÈ÷¤Ë¤Ä¤¤¤Æ¤Ï¡¢2F½»ÂðÉôʬ¤ÎÀßÈ÷¤È¤Ê¤ê¤Þ¤¹¡£
1FŹÊÞÉôʬ¤ÎÀßÈ÷¡¦È÷ÉʤˤĤ¤¤Æ¤Ï¸½¾õÂߤ·¤È¤Ê¤ê¤Þ¤¹¡£(¥á¥ó¥Æ¥Ê¥ó¥¹¤Ï¼Ú¼çÉéô)

È÷¹Í
1F¤Ïµï¼ò²°À×ÃÏ(64.80­Ö¡¦2F½»Â𸼴ØÉôʬ´Þ¤à)¤Ç¤¹¡£
¸½ºß¡¢±Ä¶È¡¦ÆþµïÃæ¤È¤Ê¤ê¤Þ¤¹¤Î¤Ç¡¢ÆâÍ÷Åù¤´´õ˾¤Î¾ì¹ç¤Ï»öÁ°¤Ë¤´Ï¢Íí²¼¤µ¤¤¡£
°ÌÃÖ³Îǧ
°°ÀîÃϿ޾ðÊó
²èÌÌɽ¼¨»þ´Ö 2026ǯ5·î2Æü 14»þ39ʬ03ÉÃ

¤³¤Îʪ·ï¤Î¤ªÌ䤤¹ç¤ï¤»Àè¡§

(³ô)m&m
TEL:0166-74-3636 FAX:0166-74-3634
070-0033 °°Àî»Ô3¾òÄÌ13ÃúÌÜ719ÈÖ1
https://www.mandm-inc.jp/company.html
Ë̳¤Æ»ÃλöÌȵö¡¦¾åÀî (2) Âè1243¹æ
¸ø±×¼ÒÃÄË¡¿ÍË̳¤Æ»ÂðÃÏ·úʪ¼è°ú¶È¶¨²ñ²ñ°÷
°ìÈ̼ÒÃÄË¡¿ÍË̳¤Æ»ÉÔÆ°»º¸øÀµ¼è°ú¶¨µÄ²ñ²ÃÌÁ

¢¨¤ªÅÅÏäǤΤªÌ䤤¹ç¤ï¤»

¤ªÌ䤤¹ç¤ï¤»¤ÎºÝ¤Ë¤Ï¡¢£É£Ò£É¡Ê¥¢¥¤¡¦¥¢¡¼¥ë¡¦¥¢¥¤¡Ë¤ò¸«¤Æ¤È¤ªÅÁ¤¨¤¯¤À¤µ¤¤¡£
¤Þ¤¿¡¢·ÇºÜ¤Îʪ·ï½»½ê¤È¶â³Û¡¢Êª·ïÈÖ¹æ¤Ê¤É¤ò¤ªÅÁ¤¨¤¤¤¿¤À¤¯¤È¥¹¥à¡¼¥º¤Ç¤¹¡£

¢¨¤´Ãí°Õ

¾åµ­É½¼¨²Á³Ê¤Ï¡¢¾ÃÈñÀǹþ¤ß²Á³Ê¤Ç¤¹¡£¾ÃÈñÀǤˤĤ¤¤Æ¤Ï¡¢¼è°·Å¹¤Ë¤ªÌ䤤¹ç¤ï¤»²¼¤µ¤¤¡£
PAGE TOP