賃貸物件詳細

物件番号 100354903
神楽岡 アパート
53,000
(株)ビジネス
敷金
1ヶ月
築後
18年
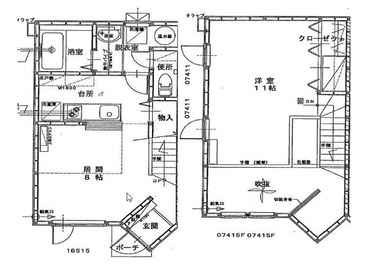
間取・詳細
1LDK /
この物件のお問い合わせ
080-2876-8971
メールでの問い合わせ
種別 / 番号
アパート / 100354903
家賃/敷/礼
53,000円/ 53,000円 / 0円
媒介報酬
無料
物件住所
旭川市神楽岡1条4丁目3-19
間取・詳細
1LDK /
建築年
平成19年3月(2007年) 18年
木造サイディング造
階建/階
2 / 1
駐車/料金
2台 0円 (注: 1台目の料金です)
管理費
0円
学校
緑新小学校 / 緑が丘中学校
取引態様
代理
ペット可否
不可
定期借家
交通機関
  
最終更新日
2025-09-30 (次回更新2週間後)
引渡可能日
即入居可能
浴室 シャワー 水洗トイレ 照明器具 暖房器具 物置 網戸 洗面台 システムキッチン シャンプードレッサー 電気給湯器 エアコン ウォシュレット
メゾネットタイプの1LDKです。戸建感覚でお住まい出来ます。
オール電化、駐車場2台完備!

備考
直ぐ近くには神楽岡公園やプラタナス通りもあり、自然に親しめる環境です。
直ぐにお住まいになれます。
他にもおすすめ物件がございます。お気軽にお問い合わせください。
位置確認
旭川地図情報
画面表示時間 2025年10月14日 12時45分03秒

この物件のお問い合わせ先:

(株)ビジネス
TEL:080-2876-8971 FAX:0166-25-1543
070-0054 旭川市4条西3丁目1-11
北海道知事免許・上川 (1) 第1294号
公益社団法人北海道宅地建物取引業協会会員
一般社団法人北海道不動産公正取引協議会加盟

※お電話でのお問い合わせ

お問い合わせの際には、IRI(アイ・アール・アイ)を見てとお伝えください。
また、掲載の物件住所と金額、物件番号などをお伝えいただくとスムーズです。

※ご注意

上記表示価格は、消費税込み価格です。消費税については、取扱店にお問い合わせ下さい。
PAGE TOP