賃貸物件詳細

この物件は現在非公開になっております
物件番号 100354842
美瑛町 1戸建
250,000
(株)トーエーprojectプラス
敷金
1ヶ月
築後
16年
間取・詳細
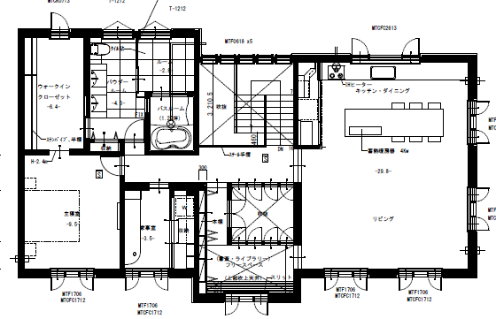
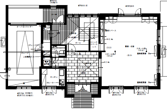
2LDK / 1階29.8×3K 2階29.8LDK×9.5
この物件のお問い合わせ
0166-76-1081
メールでの問い合わせ
種別 / 番号
1戸建 / 100354842
家賃/敷/礼
250,000円/ 250,000円 / 0円
媒介報酬
275,000円
物件住所
上川郡美瑛町中町1丁目1750
間取・詳細
2LDK / 1階29.8×3K 2階29.8LDK×9.5
建築年
平成21年1月(2009年) 16年
木造
階建/階
2 / 1、2
駐車/料金
10台以上 0円 (注: 1台目の料金です)
管理費
0円
学校
取引態様
媒介
ペット可否
不可
定期借家
交通機関
富良野線JR美瑛駅
最終更新日
2025-12-12 (次回更新2週間後)
引渡可能日
即入居可能
オール電化・蓄熱暖房・エアコン・ガレージ

備考
美瑛駅前本通り沿いの好立地高級住宅。ガレージ付で駐車は10台以上可能。
各階トイレと台所あり2階には家事室と書斎があります。1階は事務所仕様になっており事務所兼住宅としても可能です。
保証会社必須
位置確認
Google Map
画面表示時間 2025年12月16日 3時11分38秒

この物件のお問い合わせ先:

(株)トーエーprojectプラス
TEL:0166-76-1081 FAX:0166-76-1089
078-8349 旭川市東光9条10丁目4番8号
https://to-ei.net/project
北海道知事免許・上川 (1) 第1286号
公益社団法人北海道宅地建物取引業協会会員
一般社団法人北海道不動産公正取引協議会加盟

※お電話でのお問い合わせ

お問い合わせの際には、IRI(アイ・アール・アイ)を見てとお伝えください。
また、掲載の物件住所と金額、物件番号などをお伝えいただくとスムーズです。

※ご注意

上記表示価格は、消費税込み価格です。消費税については、取扱店にお問い合わせ下さい。
PAGE TOP