賃貸物件詳細

この物件は現在非公開になっております
物件番号 100350401
永山 店舗兼事務所
132,000
(株)キュービック不動産
敷金
36.0万円
築後
40年
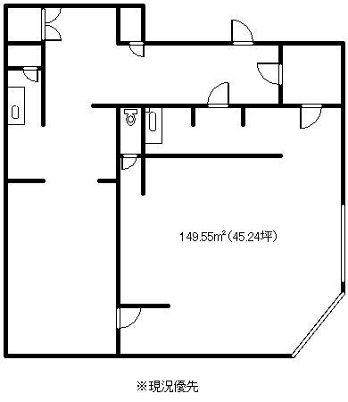
間取・詳細
1R /
この物件のお問い合わせ
0166-55-5055
メールでの問い合わせ
種別 / 番号
店舗兼事務所 / 100350401
家賃/敷/礼
132,000円/ 360,000円 / 0円
媒介報酬
132,000円
物件住所
旭川市永山3条19丁目1-12
間取・詳細
1R /
建築年
昭和60年11月(1985年) 40年
階建/階
/
駐車/料金
5台 0円 (注: 1台目の料金です)
管理費
0円
学校
取引態様
媒介
ペット可否
  
定期借家
交通機関
  
最終更新日
2025-12-06 (次回更新2週間後)
引渡可能日
即入居可能
現状貸し
給湯都市ガス 
灯油暖房(490リットル)
駐車場代無料 5台駐車可 現地要確認

備考
保証会社USEN(初回保証料100% 月額400円+税 更新(年)賃料総額10%(最低保証料10,000円) 
前借主事務所として利用
位置確認
旭川地図情報
画面表示時間 2025年12月17日 7時59分22秒

この物件のお問い合わせ先:

(株)キュービック不動産
TEL:0166-55-5055 FAX:0166-55-5065
070-0832 旭川市旭町2条9丁目128番地15
http://www.i-cubic.net
北海道知事免許・上川 (3) 第1176号
公益社団法人北海道宅地建物取引業協会会員
一般社団法人北海道不動産公正取引協議会加盟

※お電話でのお問い合わせ

お問い合わせの際には、IRI(アイ・アール・アイ)を見てとお伝えください。
また、掲載の物件住所と金額、物件番号などをお伝えいただくとスムーズです。

※ご注意

上記表示価格は、消費税込み価格です。消費税については、取扱店にお問い合わせ下さい。
PAGE TOP