賃貸物件詳細

この物件は現在非公開になっております
物件番号 100341530
中心部 店舗
330,000
(株)キュービック不動産
敷金
30.0万円
築後
43年
間取・詳細
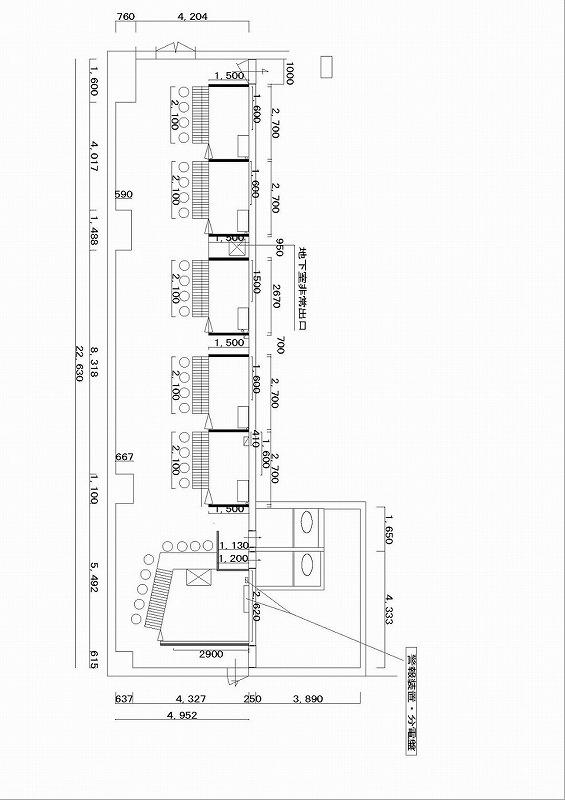
1R /
この物件のお問い合わせ
0166-55-5055
メールでの問い合わせ
種別 / 番号
店舗 / 100341530
家賃/敷/礼
330,000円/ 300,000円 / 0円
媒介報酬
330,000円
物件住所
旭川市5条通7丁目1615-7
間取・詳細
1R /
建築年
昭和57年6月(1982年) 43年
鉄筋コンクリート
階建/階
8 / 1
駐車/料金
0台 0円
管理費
0円
学校
取引態様
媒介
ペット可否
不可
定期借家
交通機関
  
最終更新日
2025-12-12 (次回更新2週間後)
引渡可能日
即入居可能
■1階テナント(原状貸し) 飲食店事業など歓迎です♪
■業種に関しましてはご相談ください。
■2階には美容関係者が入っております。
■カウンターが設置されております◎

備考
原状貸し。USEN要加入(初回保証料100% 月額手数料300円+税 更新(年)10000円
テナントに駐輪場ありです◎
位置確認
旭川地図情報
画面表示時間 2025年12月17日 6時05分31秒

この物件のお問い合わせ先:

(株)キュービック不動産
TEL:0166-55-5055 FAX:0166-55-5065
070-0832 旭川市旭町2条9丁目128番地15
http://www.i-cubic.net
北海道知事免許・上川 (3) 第1176号
公益社団法人北海道宅地建物取引業協会会員
一般社団法人北海道不動産公正取引協議会加盟

※お電話でのお問い合わせ

お問い合わせの際には、IRI(アイ・アール・アイ)を見てとお伝えください。
また、掲載の物件住所と金額、物件番号などをお伝えいただくとスムーズです。

※ご注意

上記表示価格は、消費税込み価格です。消費税については、取扱店にお問い合わせ下さい。
PAGE TOP