ÄÂÂßʪ·ï¾ÜºÙ

ʪ·ïÈÖ¹æ 100320234
ήÄÌÃÄÃÏ »ö̳½ê·óÁÒ¸Ë
242,000±ß
±Ê»³ÅÚÃÏ(³ô)
Éß¶â
2¥ö·î
ÃÛ¸å
49ǯ
´Ö¼è¡¦¾ÜºÙ
£±R /
¤³¤Îʪ·ï¤Î¤ªÌ䤤¹ç¤ï¤»
0166-26-2231
¥á¡¼¥ë¤Ç¤ÎÌ䤤¹ç¤ï¤»
¼ïÊÌ / ÈÖ¹æ
»ö̳½ê·óÁÒ¸Ë / 100320234
²ÈÄÂ/Éß/Îé
242,000±ß/ 484,000±ß / 0±ß
ÇÞ²ðÊó½·
266,200±ß
ʪ·ï½»½ê
°°Àî»ÔήÄÌÃÄÃÏ2¾ò4ÃúÌÜ14ÈÖÃÏ
´Ö¼è¡¦¾ÜºÙ
£±R /
·úÃÛǯ
¾¼ÏÂ51ǯ6·î(1976ǯ) 49ǯ
¹½Â¤
Å´¶Ú¥³¥ó¥¯¥ê¡¼¥È¤
³¬·ú/³¬
3 / Á´
Ãó¼Ö/ÎÁ¶â
0Âæ 0±ß
´ÉÍýÈñ
0±ß
³Ø¹»
¼è°úÂÖÍÍ
ÇÞ²ð
¥Ú¥Ã¥È²ÄÈÝ
¡¡¡¡
Äê´ü¼Ú²È
¸òÄ̵¡´Ø
¥Ð¥¹Ä䤫¤éÅÌÊâ3ʬ
ºÇ½ª¹¹¿·Æü
2025-12-09 (¼¡²ó¹¹¿·£²½µ´Ö¸å)
°úÅϲÄǽÆü
2026-03-31
ÀßÈ÷
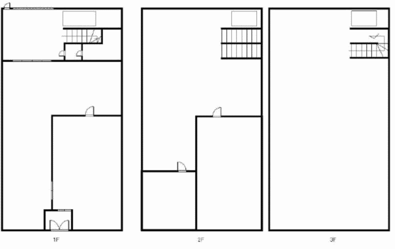
1F227.1­Ö¡¦2F227­Ö¡¦3F227­Ö

È÷¹Í
1³¬¤«¤é3³¬¤Þ¤Ç¤ÎÄÂÂߤˤʤê¤Þ¤¹¡¢¤¤¤Ä¤Ç¤â¸«³Ø¤Ç¤­¤Þ¤¹¤Î¤Ç¤´Ï¢Íí¤ªÂÔ¤Á¤·¤Æ¤ª¤ê¤Þ¤¹¡£
ÀÇÊ̤Ǥ¹¤Î¤Ç¤´Î»²ò¤¯¤À¤µ¤¤¡£
°ÌÃÖ³Îǧ
°°ÀîÃϿ޾ðÊó
²èÌÌɽ¼¨»þ´Ö 2025ǯ12·î15Æü 19»þ46ʬ31ÉÃ

¤³¤Îʪ·ï¤Î¤ªÌ䤤¹ç¤ï¤»Àè¡§

±Ê»³ÅÚÃÏ(³ô)
TEL:0166-26-2231 FAX:0166-26-2768
070-0028 °°Àî»ÔÅì8¾ò4ÃúÌÜ3ÈÖ23¹æ
https://www.n-toti.com
Ë̳¤Æ»ÃλöÌȵö¡¦¾åÀî (13) Âè458¹æ
¸ø±×¼ÒÃÄË¡¿ÍË̳¤Æ»ÂðÃÏ·úʪ¼è°ú¶È¶¨²ñ²ñ°÷
°ìÈ̼ÒÃÄË¡¿ÍË̳¤Æ»ÉÔÆ°»º¸øÀµ¼è°ú¶¨µÄ²ñ²ÃÌÁ

¢¨¤ªÅÅÏäǤΤªÌ䤤¹ç¤ï¤»

¤ªÌ䤤¹ç¤ï¤»¤ÎºÝ¤Ë¤Ï¡¢£É£Ò£É¡Ê¥¢¥¤¡¦¥¢¡¼¥ë¡¦¥¢¥¤¡Ë¤ò¸«¤Æ¤È¤ªÅÁ¤¨¤¯¤À¤µ¤¤¡£
¤Þ¤¿¡¢·ÇºÜ¤Îʪ·ï½»½ê¤È¶â³Û¡¢Êª·ïÈÖ¹æ¤Ê¤É¤ò¤ªÅÁ¤¨¤¤¤¿¤À¤¯¤È¥¹¥à¡¼¥º¤Ç¤¹¡£

¢¨¤´Ãí°Õ

¾åµ­É½¼¨²Á³Ê¤Ï¡¢¾ÃÈñÀǹþ¤ß²Á³Ê¤Ç¤¹¡£¾ÃÈñÀǤˤĤ¤¤Æ¤Ï¡¢¼è°·Å¹¤Ë¤ªÌ䤤¹ç¤ï¤»²¼¤µ¤¤¡£
PAGE TOP