売買物件詳細

物件番号 100364480
常盤通 既存MS
890万円
(株)宅建企画
専有面積
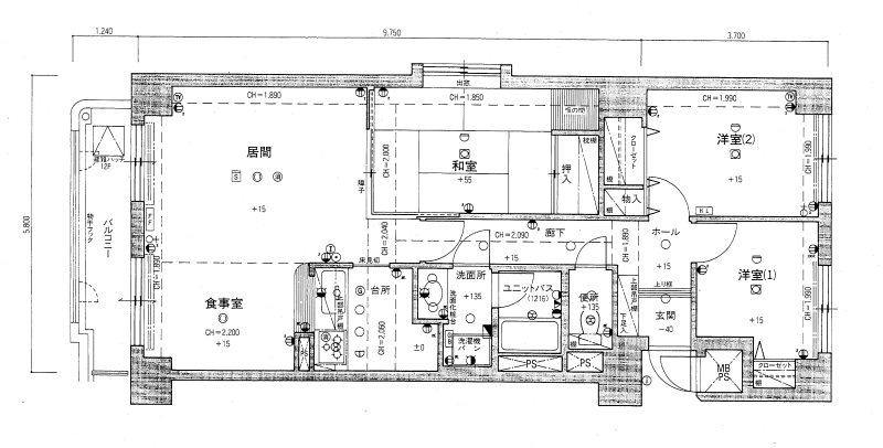
73.01㎡ (約22坪) (バルコニー面積 6.15㎡)
建築年月
1992年9月(築後 33年)
間取 / 戸数
4部屋3LDK - 11階部分
この物件のお問い合わせ
0166-24-1681
メールでの問い合わせ
種別 / 番号
既存MS / 100364480
価格
890万円 (課税対象外)
媒介報酬
359,700円 (税込み)
物件住所
旭川市常盤通3丁目1970番3
土地面積
専有面積
73.01㎡ (約22坪) (バルコニー面積 6.15㎡)
建蔽容積率
建築年月
1992年9月(築後 33年)
地目 / 用途
宅地 / 商業地域(準防火地域)
間取 / 戸数
4部屋3LDK - 11階部分
坪単価
構造
鉄骨・鉄筋コンクリート造陸屋根
地積状況
南西向き 間口 27.27m
前面道路幅 27.27m
学校
日章小学校 / 中央中学校
土地環境
上下水道、都市ガス
付 / 取引態様
(株)宅建企画
専任媒介
交通機関
バス停徒歩約2分
最終更新日
2026-04-15 (次回予定更新3ヶ月後)
引渡可能日
契約後即引渡可能

備考
ライオンズガーデン旭川常盤公園1101号室。14階建ての11階角部屋。3LDK。眺望良し、室内状態良好。バルコニーからは花火大会が鑑賞できます。
旭川のシンボル、旭橋を見下ろすことができ、天気の良い日には大雪山連峰が眺めれます。周辺には常磐公園、旭川美術館、中央図書館があり、散策に最高の立地です。
EV、オートロック、都市ガス、ガス暖房、エアコン、温水洗浄便座、ホットライン119、宅配ボックス、駐輪場、タイヤ置場。旭川市立病院まで徒歩約10分、旭川駅まで徒歩約24分。
管理費13,300円、修繕積立金31,650円。駐車場10,000円/台(空要確認)。内見は可能です。ご連絡お待ちしております。
位置確認
旭川地図情報
画面表示時間 2026年4月19日 20時25分54秒

この物件のお問い合わせ先:

(株)宅建企画
TEL:0166-24-1681 FAX:0166-24-1683
070-0037 旭川市7条通8丁目右3号第二遠野ビル
http://www.takken-k.jp/
北海道知事免許・上川 (9) 第806号
公益社団法人北海道宅地建物取引業協会会員
一般社団法人北海道不動産公正取引協議会加盟

※お電話でのお問い合わせ

お問い合わせの際には、IRI(アイ・アール・アイ)を見てとお伝えください。
また、掲載の物件住所と金額、物件番号などをお伝えいただくとスムーズです。

※ご注意

上記表示価格は消費税込みですが、売主が課税対象外業者の媒介の場合及び土地に関しては課税対象外となります。
詳しくは取扱店にいお問い合わせください。また、取引態様の表示は、元付の取引態様です。また、建物の坪数は、物件によって変わりますので、 小数点以下四捨五入で表示しています。
PAGE TOP