物件番号 100364036
深川市
8,800万円
(株)リアルター
- 種別 / 番号
- 店舗 / 100364036
- 価格
- 8,800万円 (消費税込)
- 媒介報酬
- 2,970,000円 (税込み)
- 物件住所
- 深川市北光町1丁目21-87
- 土地面積
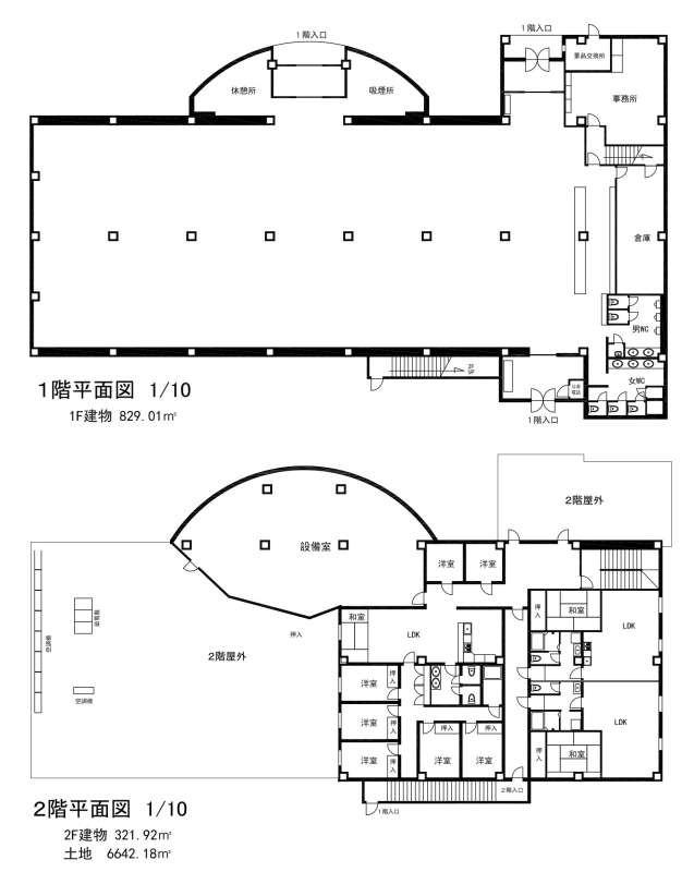
- 6642.18㎡ (2009.25坪)
- 建物面積
- 1150.93㎡ (約348坪)
- 建蔽容積率
- 建築年月
- 1990年12月(築後 35年)
- 地目 / 用途
- 宅地 / 準工業地域
- 間取 / 戸数
- 坪単価
- 構造
- 鉄骨造
- 地積状況
- 西向き角地 間口 78.969m
前面道路幅 13.00m - 学校
- 一巳小学校 / 一巳中学校
- 土地環境
- 上下水道、LPG、電気
- 元付 / 取引態様
-
(株)リアルター
一般媒介 - 交通機関
- JR函館本線 深川駅 徒歩約5分
- 最終更新日
- 2026-04-02 (次回予定更新3ヶ月後)
- 引渡可能日
- 契約後即引渡可能
- 備考
-
◆深川市北光町に大規模店舗物件が登場しました!JR深川駅から徒歩5分というアクセスの良い立地に加え、国道233号沿いという視認性の高さが魅力です。幹線道路沿いで視認性も高く、お客様を呼び込むのに最適です。
◆パチンコ店の居抜き物件として、アミューズメント施設など大規模な事業をお考えの方に特におすすめです。
◆建物1階店舗部分は平成25年10月内外装リノベーション済みです。
◆問い合わせは担当:藤原(080-5836-3937)までご連絡ください。
画面表示時間 2026年4月5日 8時17分02秒
この物件のお問い合わせ先:
(株)リアルター
北海道知事免許・上川 (11) 第660号
公益社団法人北海道宅地建物取引業協会会員
一般社団法人北海道不動産公正取引協議会加盟
公益社団法人北海道宅地建物取引業協会会員
一般社団法人北海道不動産公正取引協議会加盟
※お電話でのお問い合わせ
お問い合わせの際には、IRI(アイ・アール・アイ)を見てとお伝えください。
また、掲載の物件住所と金額、物件番号などをお伝えいただくとスムーズです。
また、掲載の物件住所と金額、物件番号などをお伝えいただくとスムーズです。
※ご注意
上記表示価格は消費税込みですが、売主が課税対象外業者の媒介の場合及び土地に関しては課税対象外となります。
詳しくは取扱店にいお問い合わせください。また、取引態様の表示は、元付の取引態様です。また、建物の坪数は、物件によって変わりますので、 小数点以下四捨五入で表示しています。
詳しくは取扱店にいお問い合わせください。また、取引態様の表示は、元付の取引態様です。また、建物の坪数は、物件によって変わりますので、 小数点以下四捨五入で表示しています。