物件番号 100363582
東光
450万円
(株)マモル不動産
- 種別 / 番号
- 既存住宅 / 100363582
- 価格
- 450万円 (課税対象外)
- 媒介報酬
- 330,000円 (税込み) ※1 下記参照
- 物件住所
- 旭川市東光4条1丁目2番23号
- 土地面積
- 252.88㎡ (76.49坪)
- 建物面積
- 81㎡ (約24坪)
- 建蔽容積率
- 60% - 200%
- 建築年月
- 1973年11月(築後 52年)
- 地目 / 用途
- 宅地 / 第1種住居地域
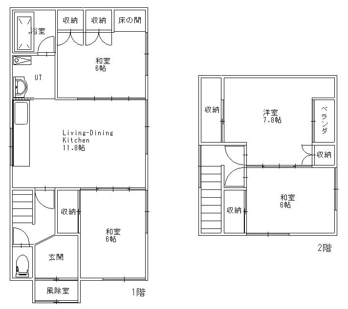
- 間取 / 戸数
- 5部屋4LDK
- 坪単価
- 構造
- 木造亜鉛メッキ鋼板葺
- 地積状況
- 南向き 間口 4.00m
前面道路幅 8.00m - 学校
- 千代田小学校 / 東光中学校
- 土地環境
- 上下水道、北電
- 元付 / 取引態様
-
(株)マモル不動産
専任媒介 - 交通機関
- 電気軌道「東光3条1丁目」停 徒歩2分
- 最終更新日
- 2026-02-17 (次回予定更新3ヶ月後)
- 引渡可能日
- 契約後即引渡可能
- 備考
-
■利便性の良い東光エリアです。バス停近く、中心部へのアクセス良好!買い物・医療等徒歩圏です。
■旗竿地ですが間口は4mほどあり、通路部分に駐車2〜3台(車種による)可能。奥まった隠れ家的な4LDK住宅です♪
■築50年相応の劣化、残置物あり。現状有姿でのお引渡しとなります。測量未実施、積雪のため越境についての詳細不明。
※過去に増改築歴あり、詳細不明。新築時の確認済証、検査済証有。
画面表示時間 2026年3月18日 17時31分00秒
この物件のお問い合わせ先:
(株)マモル不動産
北海道知事免許・上川 (2) 第1229号
公益社団法人北海道宅地建物取引業協会会員
一般社団法人北海道不動産公正取引協議会加盟
公益社団法人北海道宅地建物取引業協会会員
一般社団法人北海道不動産公正取引協議会加盟
※お電話でのお問い合わせ
お問い合わせの際には、IRI(アイ・アール・アイ)を見てとお伝えください。
また、掲載の物件住所と金額、物件番号などをお伝えいただくとスムーズです。
また、掲載の物件住所と金額、物件番号などをお伝えいただくとスムーズです。
※1
2024年7月1日より法律改正において売価800万円以下の物件の媒介報酬額は、最高 30万円+消費税 まで発生する場合が有り、表示されている媒介報酬金額より高くなる場合が有ります。その場合でも30万円+消費税を超えることは有りません。詳しくは取扱店にお問い合わせください。
※ご注意
上記表示価格は消費税込みですが、売主が課税対象外業者の媒介の場合及び土地に関しては課税対象外となります。
詳しくは取扱店にいお問い合わせください。また、取引態様の表示は、元付の取引態様です。また、建物の坪数は、物件によって変わりますので、 小数点以下四捨五入で表示しています。
詳しくは取扱店にいお問い合わせください。また、取引態様の表示は、元付の取引態様です。また、建物の坪数は、物件によって変わりますので、 小数点以下四捨五入で表示しています。