物件番号 100362975
春光台
2,550万円
(株)SKCサワダ
- 種別 / 番号
- 新築住宅 / 100362975
- 価格
- 2,550万円 (消費税込)
- 媒介報酬
- 売主につき 無料
- 物件住所
- 旭川市春光台2条4丁目10-6
- 土地面積
- 378.21㎡ (114.40坪)
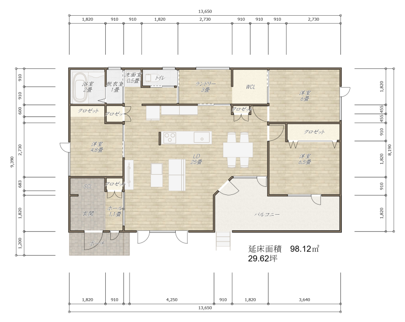
- 建物面積
- 98.12㎡ (約30坪)
- 建蔽容積率
- 40% - 60%
- 建築年月
- 2026年1月(築後 1年未満)
- 地目 / 用途
- 宅地 / 第1種低層住居専用地域
- 間取 / 戸数
- 3部屋3LDK
- 確認申請
- 第R7 000141号
- 構造
- 在来工法
- 地積状況
- 南西向き 間口 18.010m
前面道路幅 8.000m - 学校
- 高台小学校 / 春光台中学校
- 土地環境
- 上下水道・都市ガス、北電
- 元付 / 取引態様
-
(株)SKCサワダ
売主 - 交通機関
- 春光台3-4バス停徒歩3分
- 最終更新日
- 2026-02-25 (次回予定更新3ヶ月後)
- 引渡可能日
- 契約後即引渡可能
- 備考
-
25畳!の広々LDKと大空間のバルコニー 解放感たっぷりの「別荘の様な住宅」
寝室からウォークインクローゼット〜ランドリー〜WC〜UBのラクラク導線の「サワダのデザイン住宅」です
50年ローン 3年固定0.93% ZEH基準 月々53.160円
内覧のご希望がありましたらフリーダイヤル0120-570-239
画面表示時間 2026年3月17日 21時13分49秒
この物件のお問い合わせ先:
(株)SKCサワダ
北海道知事免許・上川 (3) 第1152号
公益社団法人北海道宅地建物取引業協会会員
一般社団法人北海道不動産公正取引協議会加盟
公益社団法人北海道宅地建物取引業協会会員
一般社団法人北海道不動産公正取引協議会加盟
※お電話でのお問い合わせ
お問い合わせの際には、IRI(アイ・アール・アイ)を見てとお伝えください。
また、掲載の物件住所と金額、物件番号などをお伝えいただくとスムーズです。
また、掲載の物件住所と金額、物件番号などをお伝えいただくとスムーズです。
※ご注意
上記表示価格は消費税込みですが、売主が課税対象外業者の媒介の場合及び土地に関しては課税対象外となります。
詳しくは取扱店にいお問い合わせください。また、取引態様の表示は、元付の取引態様です。また、建物の坪数は、物件によって変わりますので、 小数点以下四捨五入で表示しています。
詳しくは取扱店にいお問い合わせください。また、取引態様の表示は、元付の取引態様です。また、建物の坪数は、物件によって変わりますので、 小数点以下四捨五入で表示しています。