物件番号 100362786
豊岡
1,500万円
(株)トーワハウジング
この物件は現在 商談中です!
- 種別 / 番号
- 既存住宅 / 100362786
- 価格
- 1,500万円 (課税対象外)
- 媒介報酬
- 561,000円 (税込み)
- 物件住所
- 旭川市豊岡5条7丁目1番55号
- 土地面積
- 364.73㎡ (110.33坪)
- 建物面積
- 138.82㎡ (約42坪)
- 建蔽容積率
- 40% - 60%
- 建築年月
- 1996年2月(築後 30年)
- 地目 / 用途
- 宅地 / 第1種低層住居専用地域
- 間取 / 戸数
- 7部屋6LDK
- 坪単価
- 構造
- 木造亜鉛メッキ鋼板葺
- 地積状況
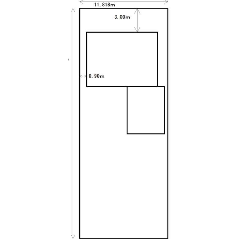
- 南向き 間口 11.818m
前面道路幅 11.00m - 学校
- 愛宕東小学校 / 東陽中学校
- 土地環境
- 上下水道、北電、都市ガス(引き込み可)
- 元付 / 取引態様
-
(株)トーワハウジング
専任媒介 - 交通機関
- 豊岡4-6バス停徒歩2分
- 最終更新日
- 2026-03-12 (次回予定更新3ヶ月後)
- 引渡可能日
- 契約後即引渡可能
- 備考
-
◆人気の豊岡地区に位置する、5LDKの中古住宅です。駐車スペースも十分に確保でき、人数の多いご家族でも快適にお使いいただけます。
◆2階は平成17年に2部屋分増築されています。室内はリフォームが必要ですが、その分ご自身に合わせた住まいづくりが可能です。
◆プロノ旭川本店駐車場の隣の物件です。
◆設備はキッチン、ユニットバス、洗面台、トイレ(1F,2F)、FFストーブ(灯油)、給騰ボイラー(灯油)、各室照明器具、エアコン、前面に水道管はありますが現在は地下水です。
画面表示時間 2026年4月28日 11時47分57秒
この物件のお問い合わせ先:
(株)トーワハウジング
北海道知事免許・上川 (6) 第938号
公益社団法人北海道宅地建物取引業協会会員
一般社団法人北海道不動産公正取引協議会加盟
公益社団法人北海道宅地建物取引業協会会員
一般社団法人北海道不動産公正取引協議会加盟
※お電話でのお問い合わせ
お問い合わせの際には、IRI(アイ・アール・アイ)を見てとお伝えください。
また、掲載の物件住所と金額、物件番号などをお伝えいただくとスムーズです。
また、掲載の物件住所と金額、物件番号などをお伝えいただくとスムーズです。
※ご注意
上記表示価格は消費税込みですが、売主が課税対象外業者の媒介の場合及び土地に関しては課税対象外となります。
詳しくは取扱店にいお問い合わせください。また、取引態様の表示は、元付の取引態様です。また、建物の坪数は、物件によって変わりますので、 小数点以下四捨五入で表示しています。
詳しくは取扱店にいお問い合わせください。また、取引態様の表示は、元付の取引態様です。また、建物の坪数は、物件によって変わりますので、 小数点以下四捨五入で表示しています。