物件番号 100362026
中心部
5,880万円
(株)生活プロデュースリーシング
- 種別 / 番号
- 既存(1棟売)MS / 100362026
- 価格
- 5,880万円 (消費税込又は課税対象外)
- 媒介報酬
- 2,006,400円 (税込み)
- 物件住所
- 旭川市1条通10丁目2070-1
- 土地面積
- 553.49㎡ (167.43坪)
- 建物面積
- 1551.43㎡ (約469坪)
- 専有面積
- 最小 42.4㎡ -
最大 734.96㎡ - 建築年月
- 1975年3月(築後 50年)
- 地目 / 用途
- 宅地 / 商業地域
- 間取 / 戸数
- 3部屋
- 坪単価
- 構造
- SRC造
- 地積状況
- 角地
- 学校
- 知新小学校 / 中央中学校
- 土地環境
- 元付 / 取引態様
-
(株)生活プロデュースリーシング
専任媒介 - 交通機関
- 1-9停留所徒歩5分
- 最終更新日
- 2025-11-05 (次回予定更新3ヶ月後)
- 引渡可能日
- 契約後即引渡可能
- 備考
-
事業用テナントビル3棟一括のセット販売です。
上記表記は、永隆ビルABCになり、C棟は、昭和47年6月完成です。
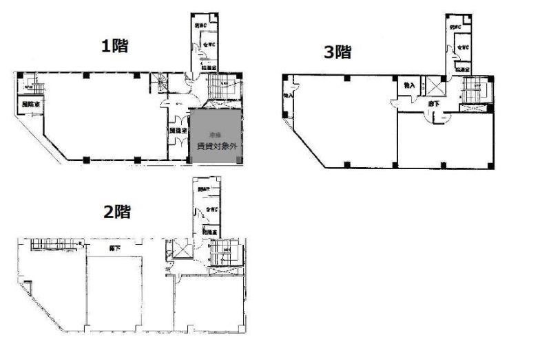
図面は、A棟です。
画面表示時間 2025年12月21日 23時54分09秒
この物件のお問い合わせ先:
(株)生活プロデュースリーシング
北海道知事免許・上川 (3) 第1193号
公益社団法人北海道宅地建物取引業協会会員
一般社団法人北海道不動産公正取引協議会加盟
公益社団法人北海道宅地建物取引業協会会員
一般社団法人北海道不動産公正取引協議会加盟
※お電話でのお問い合わせ
お問い合わせの際には、IRI(アイ・アール・アイ)を見てとお伝えください。
また、掲載の物件住所と金額、物件番号などをお伝えいただくとスムーズです。
また、掲載の物件住所と金額、物件番号などをお伝えいただくとスムーズです。
※ご注意
上記表示価格は消費税込みですが、売主が課税対象外業者の媒介の場合及び土地に関しては課税対象外となります。
詳しくは取扱店にいお問い合わせください。また、取引態様の表示は、元付の取引態様です。また、建物の坪数は、物件によって変わりますので、 小数点以下四捨五入で表示しています。
詳しくは取扱店にいお問い合わせください。また、取引態様の表示は、元付の取引態様です。また、建物の坪数は、物件によって変わりますので、 小数点以下四捨五入で表示しています。