物件番号 100358557
東川町
2,650万円
(株)プライムアセット
- 種別 / 番号
- 既存(1棟売)MS / 100358557
- 価格
- 2,650万円 (非課税)
- 媒介報酬
- 940,500円 (税込み)
- 収益予測
- 年間収益予測 1,140,000円 予測利回り 4.30%
- 物件住所
- 上川郡東川町東8号北1丁目
- 土地面積
- 915.21㎡ (276.85坪)
- 建物面積
- 207.36㎡ (約63坪)
- 専有面積
- 最小 207.36㎡ -
最大 207.36㎡ - 建築年月
- 2009年1月(築後 16年)
- 地目 / 用途
- 間取 / 戸数
- 1部屋
- 坪単価
- 構造
- 木造亜鉛メッキ鋼板葺き
- 地積状況
- 南西向き 間口 23.999m
前面道路幅 9.5m - 学校
- 東川第3小学校 / 東川中学校
- 土地環境
- 上水道(東川町)
- 元付 / 取引態様
-
(株)プライムアセット
専任媒介 - 交通機関
- 東7号北1 徒歩3分
- 最終更新日
- 2025-11-18 (次回予定更新3ヶ月後)
- 引渡可能日
- 契約後即引渡可能
- 備考
-
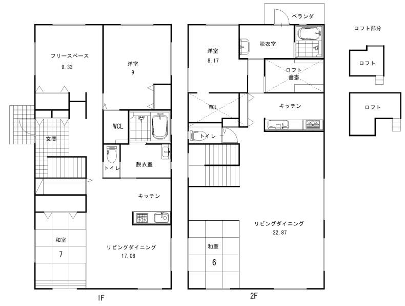
人気の東川町!第三小学校、大雪遊水公園近くの2世帯住宅です! 現在賃貸として稼働中です。 賃料95,000円/月 年収1,140,000円
木のぬくもりを味わえるとてもおしゃれな住宅です。入口玄関は同一ですが1階・2階にそれぞれ浴室、トイレ、キッチンなどの水廻りがあります!ウォークインクローゼットやロフトなどの収納も充実しており、書斎やフリースペースもある贅沢な造りです!276坪の広い土地には車庫、カーポート、物置もございます!
水道供給につきましては、自治会運営の施設から地下水を供給しております。(第34飲料水供給施設)現在月額1000円、今後値上げの可能性あり、下水は浄化槽です。
画面表示時間 2025年12月16日 12時35分30秒
この物件のお問い合わせ先:
(株)プライムアセット
北海道知事免許・上川 (4) 第1120号
公益社団法人北海道宅地建物取引業協会会員
一般社団法人北海道不動産公正取引協議会加盟
公益社団法人北海道宅地建物取引業協会会員
一般社団法人北海道不動産公正取引協議会加盟
※お電話でのお問い合わせ
お問い合わせの際には、IRI(アイ・アール・アイ)を見てとお伝えください。
また、掲載の物件住所と金額、物件番号などをお伝えいただくとスムーズです。
また、掲載の物件住所と金額、物件番号などをお伝えいただくとスムーズです。
※ご注意
上記表示価格は消費税込みですが、売主が課税対象外業者の媒介の場合及び土地に関しては課税対象外となります。
詳しくは取扱店にいお問い合わせください。また、取引態様の表示は、元付の取引態様です。また、建物の坪数は、物件によって変わりますので、 小数点以下四捨五入で表示しています。
詳しくは取扱店にいお問い合わせください。また、取引態様の表示は、元付の取引態様です。また、建物の坪数は、物件によって変わりますので、 小数点以下四捨五入で表示しています。