物件番号 100358279
                
                    神居
                    
                    
                
                        70万円                    
                (株)イザワエンタープライズ
                
            - 種別 / 番号
 - 既存MS / 100358279
 - 価格
 - 70万円 (非課税)
 - 媒介報酬
 - 110,000円 (税込み) ※1 下記参照
 - 物件住所
 - 旭川市神居8条13丁目<財形神居ハイツ305号室>
 - 土地面積
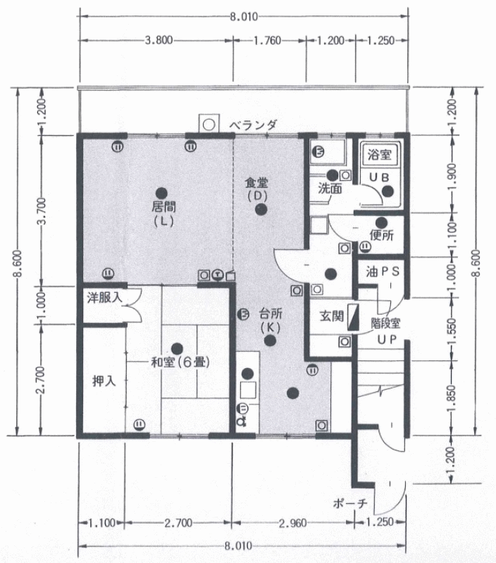
 - 専有面積
 - 51.03㎡ (約15坪) (バルコニー面積 9.61㎡)
 - 建蔽容積率
 - 建築年月
 - 1978年12月(築後 46年)
 - 地目 / 用途
 - 間取 / 戸数
 - 1部屋1LDK - 3階部分
 - 坪単価
 - 構造
 - 鉄骨鉄筋コンクリート造陸屋根3階建
 - 地積状況
 - 北東向き
 - 学校
 - 神居東小学校 / 神居東中学校
 - 土地環境
 - 元付 / 取引態様
 - 
                        (株)イザワエンタープライズ
専任媒介 - 交通機関
 - 道北バス停徒歩7分
 - 最終更新日
 - 2025-08-14 (次回予定更新3ヶ月後)
 - 引渡可能日
 - 契約後即引渡可能
 
- 備考
 - 
                        ☆眺望良好な3階建分譲マンションの3階部分☆
自然豊かな住環境♪内部の状態も良好です(^^)※美装済み
年間固定資産税額:45,200円(R7)、管理費:4,500円、修繕積立金:4,500円、施設共益費:1,500円、駐車場:2,000円
お問い合わせはお気軽に♪直通➝☎090-9758-5179へお願い致します(^^) 
画面表示時間 2025年11月5日 0時17分08秒                
                
            
この物件のお問い合わせ先:
            (株)イザワエンタープライズ
            
                                    北海道知事免許・上川                                (2) 第1214号
公益社団法人北海道宅地建物取引業協会会員
一般社団法人北海道不動産公正取引協議会加盟
        公益社団法人北海道宅地建物取引業協会会員
一般社団法人北海道不動産公正取引協議会加盟
※お電話でのお問い合わせ
                お問い合わせの際には、IRI(アイ・アール・アイ)を見てとお伝えください。
また、掲載の物件住所と金額、物件番号などをお伝えいただくとスムーズです。
                            また、掲載の物件住所と金額、物件番号などをお伝えいただくとスムーズです。
※1
                    2024年7月1日より法律改正において売価800万円以下の物件の媒介報酬額は、最高 30万円+消費税 まで発生する場合が有り、表示されている媒介報酬金額より高くなる場合が有ります。その場合でも30万円+消費税を超えることは有りません。詳しくは取扱店にお問い合わせください。
                
                        ※ご注意
                上記表示価格は消費税込みですが、売主が課税対象外業者の媒介の場合及び土地に関しては課税対象外となります。
詳しくは取扱店にいお問い合わせください。また、取引態様の表示は、元付の取引態様です。また、建物の坪数は、物件によって変わりますので、 小数点以下四捨五入で表示しています。
        詳しくは取扱店にいお問い合わせください。また、取引態様の表示は、元付の取引態様です。また、建物の坪数は、物件によって変わりますので、 小数点以下四捨五入で表示しています。