物件番号 100354949
深川市
1,250万円
(同)Ritz
- 種別 / 番号
- 既存(1棟売)MS / 100354949
- 価格
- 1,250万円 (消費税込)
- 媒介報酬
- 478,500円 (税込み)
- 収益予測
- 年間収益予測 3,144,000円 予測利回り 25.15%
- 物件住所
- 深川市文光町7-4
- 土地面積
- 331.11㎡ (100.16坪)
- 建物面積
- 307.80㎡ (約93坪)
- 専有面積
- 最小 30.08㎡ -
最大 30.08㎡ - 建築年月
- 1992年4月(築後 33年)
- 地目 / 用途
- 宅地 / 第1種中高層住居専用地域
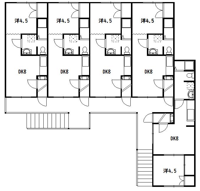
- 間取 / 戸数
- 10部屋
- 坪単価
- 構造
- 木造
- 地積状況
- 南東向き 間口 18.21m
前面道路幅 14.54m - 学校
- 土地環境
- 上下水道 LPG 北電
- 元付 / 取引態様
-
(同)Ritz
専任媒介 - 交通機関
- バス停(深川西高前)より徒歩7分
- 最終更新日
- 2025-10-18 (次回予定更新3ヶ月後)
- 引渡可能日
- 契約後即引渡可能
- 備考
-
現在7戸賃貸中 現況利回16.70%!!(現況年収2,088,000円)
駐車場は現在2台使用中 あと2台分募集できます。
インターネット設備導入済み(引継ぎ可能)
満室想定年収3,144,000円 満室想定利回25.15%
画面表示時間 2025年12月17日 15時41分29秒
この物件のお問い合わせ先:
(同)Ritz
北海道知事免許・上川 (1) 第1273号
公益社団法人北海道宅地建物取引業協会会員
一般社団法人北海道不動産公正取引協議会加盟
公益社団法人北海道宅地建物取引業協会会員
一般社団法人北海道不動産公正取引協議会加盟
※お電話でのお問い合わせ
お問い合わせの際には、IRI(アイ・アール・アイ)を見てとお伝えください。
また、掲載の物件住所と金額、物件番号などをお伝えいただくとスムーズです。
また、掲載の物件住所と金額、物件番号などをお伝えいただくとスムーズです。
※ご注意
上記表示価格は消費税込みですが、売主が課税対象外業者の媒介の場合及び土地に関しては課税対象外となります。
詳しくは取扱店にいお問い合わせください。また、取引態様の表示は、元付の取引態様です。また、建物の坪数は、物件によって変わりますので、 小数点以下四捨五入で表示しています。
詳しくは取扱店にいお問い合わせください。また、取引態様の表示は、元付の取引態様です。また、建物の坪数は、物件によって変わりますので、 小数点以下四捨五入で表示しています。