物件番号 100348746
錦町
700万円
アイリス(株)
- 種別 / 番号
- 土地 / 100348746
- 価格
- 700万円 (課税対象外)
- 媒介報酬
- 330,000円 (税込み) ※1 下記参照
- 物件住所
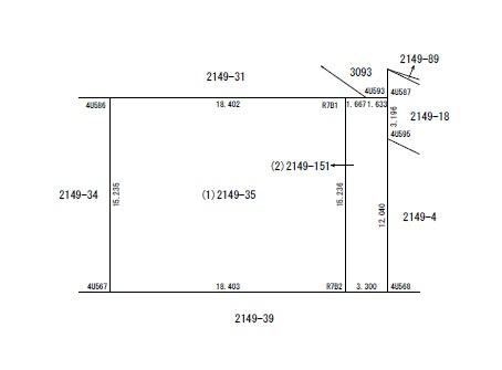
- 旭川市錦町18丁目2149番35
- 土地面積
- 280㎡ (84.70坪)
- 建物面積
- 建蔽容積率
- 60% - 200%
- 建築年月
- 地目 / 用途
- 雑種地 / 第1種住居地域
- 間取 / 戸数
- 坪単価
- 8.3万円
- 構造
- 地積状況
- 南東向き 間口 21.70m
前面道路幅 6~8m - 学校
- 近文小学校 / 北門中学校
- 土地環境
- 上下水道、都市ガス引き込み可
- 元付 / 取引態様
-
アイリス(株)
専任媒介 - 交通機関
- 最終更新日
- 2025-10-26 (次回予定更新3ヶ月後)
- 引渡可能日
- 契約後即引渡可能
- 備考
-
イオン西店まで700m、近文小学校まで450m、徒歩7分、北門中学校まで550m、徒歩8分
ドラッグストア、飲食店、ガソリンスタンドなど揃った生活に便利なエリアです。
雑種地ですが住宅も建てられます。是非、現地をご確認されてご検討お願いいたします。
画面表示時間 2025年12月23日 12時31分22秒
この物件のお問い合わせ先:
アイリス(株)
北海道知事免許・上川 (2) 第1201号
公益社団法人北海道宅地建物取引業協会会員
一般社団法人北海道不動産公正取引協議会加盟
公益社団法人北海道宅地建物取引業協会会員
一般社団法人北海道不動産公正取引協議会加盟
※お電話でのお問い合わせ
お問い合わせの際には、IRI(アイ・アール・アイ)を見てとお伝えください。
また、掲載の物件住所と金額、物件番号などをお伝えいただくとスムーズです。
また、掲載の物件住所と金額、物件番号などをお伝えいただくとスムーズです。
※1
2024年7月1日より法律改正において売価800万円以下の物件の媒介報酬額は、最高 30万円+消費税 まで発生する場合が有り、表示されている媒介報酬金額より高くなる場合が有ります。その場合でも30万円+消費税を超えることは有りません。詳しくは取扱店にお問い合わせください。
※ご注意
上記表示価格は消費税込みですが、売主が課税対象外業者の媒介の場合及び土地に関しては課税対象外となります。
詳しくは取扱店にいお問い合わせください。また、取引態様の表示は、元付の取引態様です。また、建物の坪数は、物件によって変わりますので、 小数点以下四捨五入で表示しています。
詳しくは取扱店にいお問い合わせください。また、取引態様の表示は、元付の取引態様です。また、建物の坪数は、物件によって変わりますので、 小数点以下四捨五入で表示しています。